一覧へ戻るトレジャーライフ大島2丁目 


- おかげさまで完売御礼!!
- 阪神本線「武庫川駅」徒歩14分
- 尼崎市大島2丁目
★省エネ4等級★外壁37mm厚のスーパーボード!★屋上庭園!★豪華仕様!★タッチキーシステム付玄関ドア・Low-Eガラス★フラット35Sエコ
現地地図・交通アクセス
交通アクセス
阪神「武庫川駅」から
- 阪神
- 梅田駅へ
直通13分
- 阪神
- 神戸三宮へ
直通21分
通勤シミュレーション

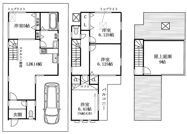
物件概要
| 物件種別 | 新築一戸建て | ||
|---|---|---|---|
| 所在地 | 尼崎市大島2丁目 | ||
| 交通 | 阪神本線「武庫川駅」徒歩14分 | ||
| 間取り | 4LDK+駐車スペース+屋上庭園! | ||
| 販売区画(戸)数 | 1戸 | ||
| 土地面積 | 約84.74m²(私道含む) | 構造 | 木造スレート葺2階建 |
| 建物面積 | 約87.07m² | 取引態様 | 売主 |
| 用途地域 | 第1種中高層住居専用地域 | 権利形態 | 所有権 |
| 建ぺい率/容積率 | 60%/200% | 地目 | 宅地 |
| 接道状況 | 幅員約4.4m | 学校区 | 成文小学校/大庄中学校 |
※現況と図面が相違する場合は現況優先いたします。
※通勤時間はおおよその分数です。また、乗り換え時間や待ち時間は計算に含まれません。
※概略地図につき現況を優先いたします。
※このほか、物件情報についてはその都度変更される場合がございますのでご了承ください。
エコハウス : ecohouse尼崎市の不動産ならおまかせください。【新築一戸建て・中古一戸建て・売土地】

定休日/水曜日 営業時間AM9:30~PM7:30 兵庫県尼崎市尾浜町2丁目32番6号



































